Смотреть проект
Проектировщикам
Все проекты
Паспорта приборов
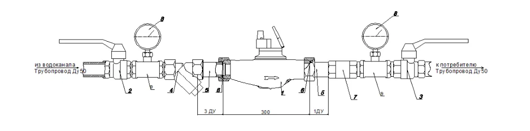
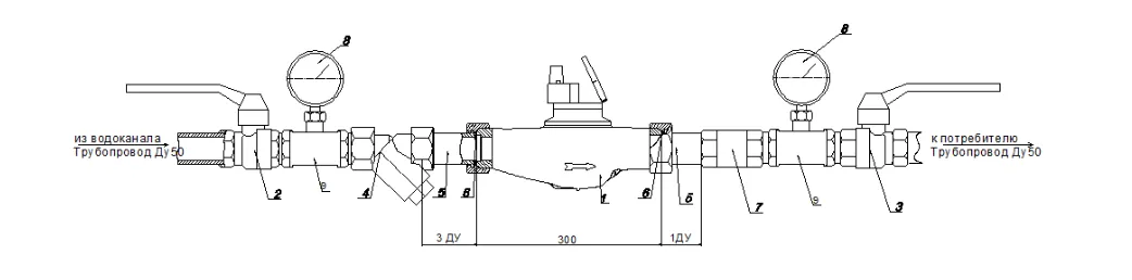
Типовые схемы для манометров
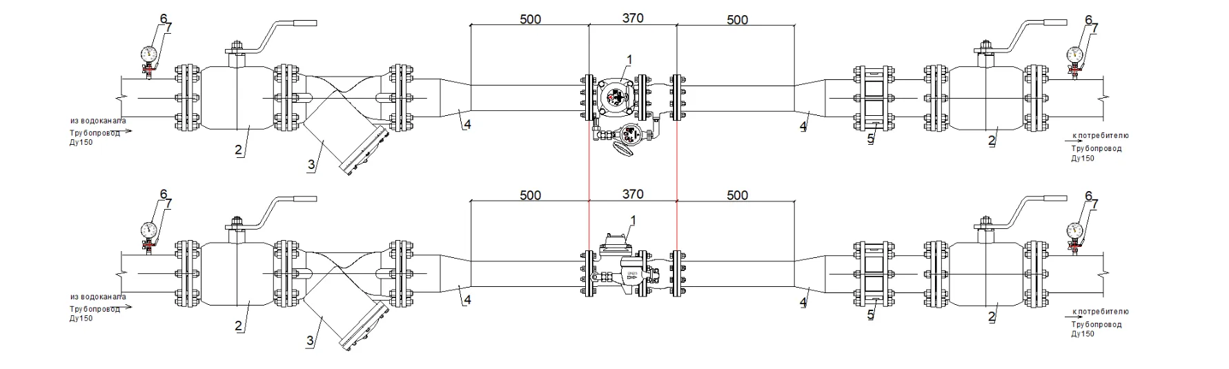
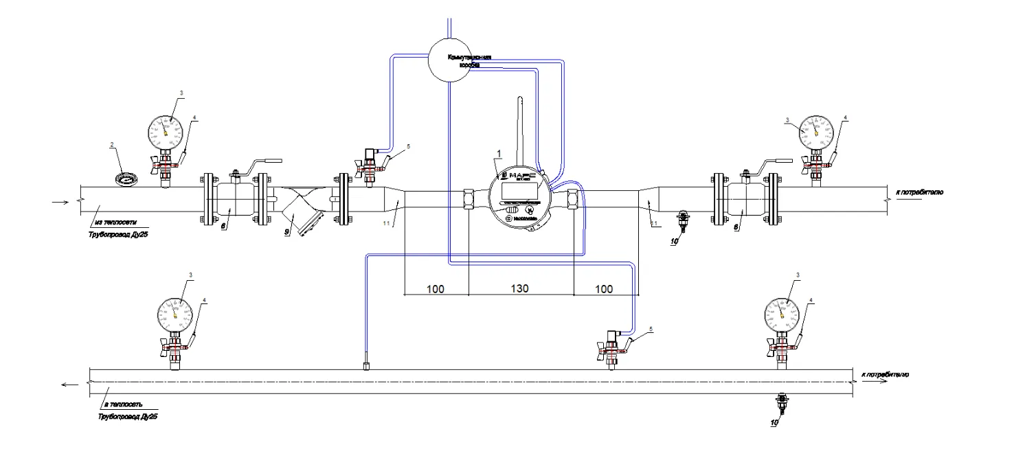
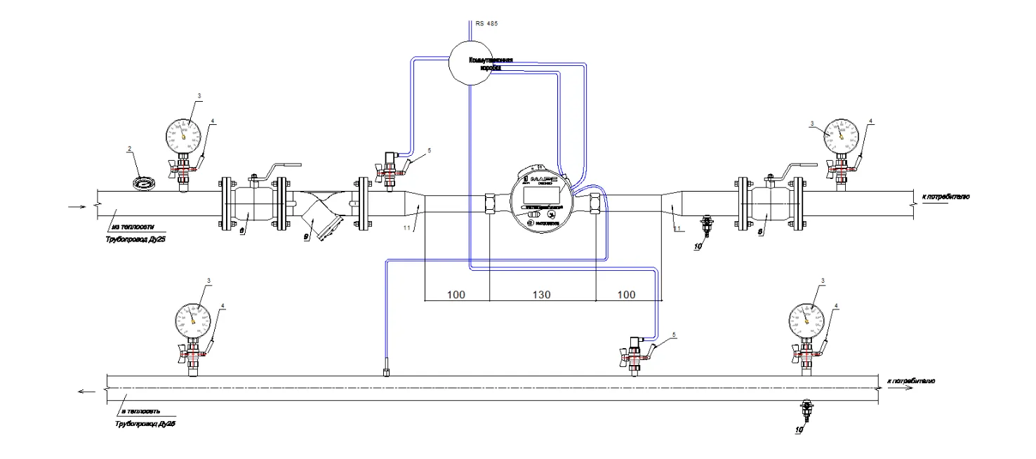
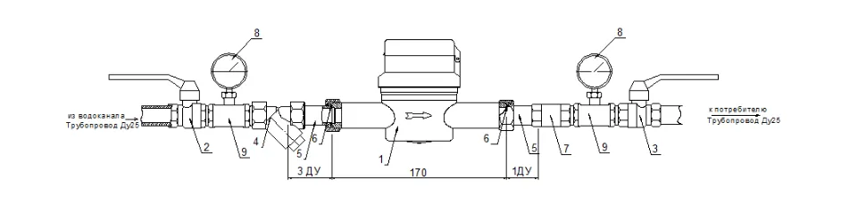
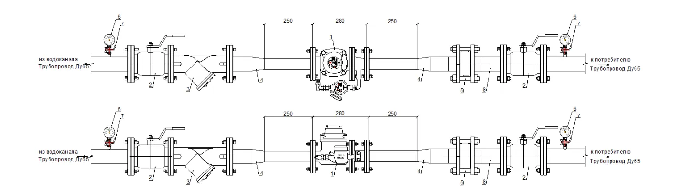
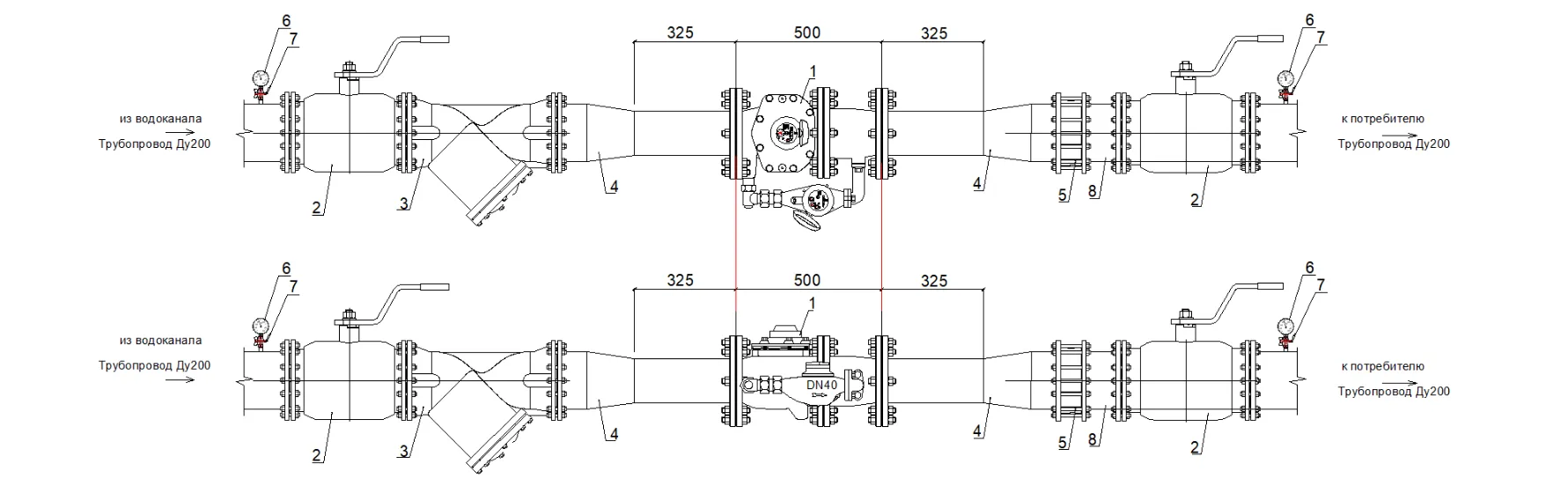
Типовые схемы для комбинированных счетчиков воды
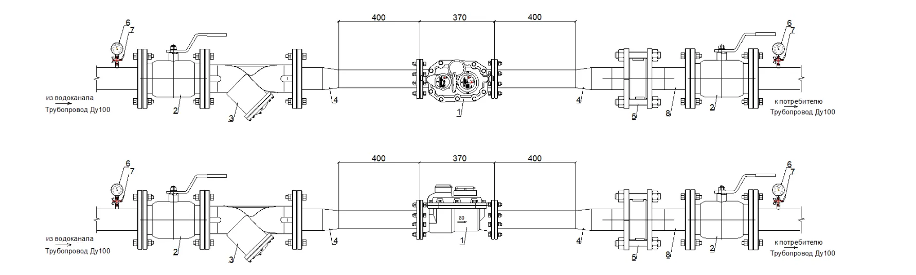
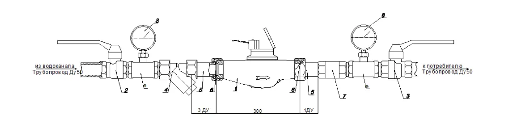
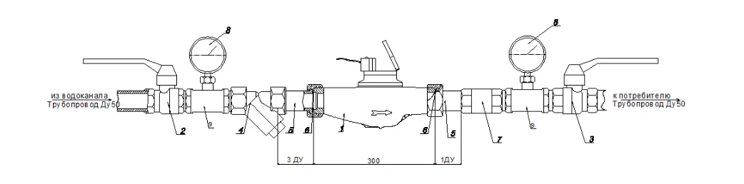
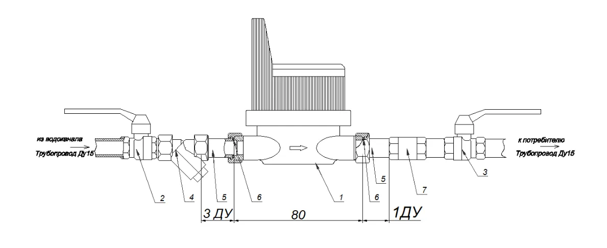
Типовые схемы счетчиков Decast
