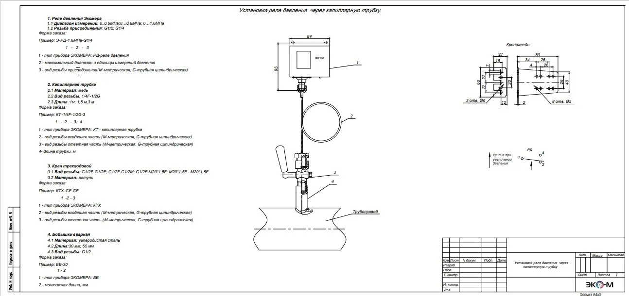
Реле давления
Реле давления
Реле давления
Диапазон измерений: 0..0,6МПа;0…0,8МПа; 0…1,6МПа
Резьба присоединения: G1/2; G1/4
Капиллярная трубка
Материал: медь
Вид резьбы: 1/4F-1/2G
Длина :1м, 1,5 м,3 м
Кран трехходовой
Вид резьбы: G1/2F-G1/2F; G1/2F-G1/2M; G1/2F-M20*1,5F; M20*1,5F - M20*1,5F
Материал: латунь
Бобышка вварная
Материал: углеродистая сталь
Длина:30 мм; 55 мм
Вид резьбы: G1/2
Скачайте архив по ссылке ниже, включающий файлы для AutoCAD, PDF и фото приборов, которые помогут проектировщикам в своей работе.
Диапазон измерений: 0..0,6МПа;0…0,8МПа; 0…1,6МПа
Резьба присоединения: G1/2; G1/4
Капиллярная трубка
Материал: медь
Вид резьбы: 1/4F-1/2G
Длина :1м, 1,5 м,3 м
Кран трехходовой
Вид резьбы: G1/2F-G1/2F; G1/2F-G1/2M; G1/2F-M20*1,5F; M20*1,5F - M20*1,5F
Материал: латунь
Бобышка вварная
Материал: углеродистая сталь
Длина:30 мм; 55 мм
Вид резьбы: G1/2
Скачайте архив по ссылке ниже, включающий файлы для AutoCAD, PDF и фото приборов, которые помогут проектировщикам в своей работе.
